売買物件詳細情報
| 【店舗事務所(建物一括)】長野県松本市双葉南松本駅前ビル | |||||
| 価格 | 9,500万円 | 土地面積 | 355.73m²(実測) (107.6坪) |
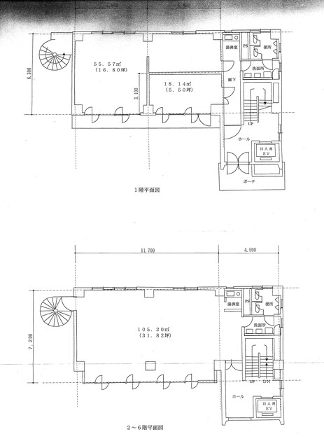
建物面積 | 816.21m² |
| 築年数 | 1977/5 | 階建・階 | 7階 | 建物構造 | RC |
| 担当者からのコメント | ◎南松本駅前の好立地物件です!◎1階~3階は学習塾、4~6階は事務所として賃貸中です(全室賃貸中)◎表利回り:11.81%◎現況有姿渡しです。 | ||||
| 沿線・駅 | JR篠ノ井線 南松本 | バス・徒歩 |
【駅徒歩】 1分 距離:74m |
通学区 | 開明小学校 / 信明中学校 |
| 駐車場 | 有 (9台) |
管理方式 | - | 総戸数 | 6 |
| 施工会社 | - | 地目 | 宅地 | 地勢 | 平坦 |
| 土地権利 | 所有権 | 借地期間・地代(月額) | - | その他一時金 | - |
| 保証金 | - | 権利金 | - | 都市計画 | 市街化 |
| 建ぺい率 | 80% | 容積率 | 200% | 用途地域 | 近隣商業 |
| 角地 | - | 接道状況 | 北 幅員17 公道 |
現況 | 賃貸中 |
| 年間予定賃料収入 | 11,215,200 | 利回り | 11.81 | 条件等 | オーナーチェンジ |
| 引渡し | 相談 | ||||
| 設備 | エアコン/給湯/エレベータ/駐車場/駐車スペース | ||||
| その他 | 事業用物件 | ||||
| 居抜き(店舗) | - | ||||
| 備考 |
松本駅:2600m徒歩37分車12分/松本インター:3400m車15分/松本市役所:3400m車15分/松本警察署:2200m徒歩32車10分//イオン南松本:600m徒歩9分/イオンモール:3200m徒歩45分車13分/コモ庄内:1800m徒歩25分車10分 |
||||
| 取引態様 | 媒介 | ||||
更新日:2025年12月16日(次回更新予定日:2025年12月30日)
更新日:2025年12月16日
(次回更新予定日:2025年12月30日)
この物件について問い合わせる 0263-32-1235
売買仲介手数料について
取引態様が媒介の場合、国土交通省告示1552号の宅地建物取引業報酬に基づき取引額に応じて以下の手数料が別途必要になります。
| 取引額 |
| 200万円以下の場合 400万円以下の場合 400万円を超える場合 |
| 規定手数料 |
| 取引額の5% 取引額の4%+2万円 取引額の3%+6万円 |
※上記金額には別途消費税がかかります。


