賃貸店舗詳細情報
| 【店舗(建物一部)】長野県松本市城東 | |||||
| 賃料 | 9万円 | 敷金 | 1 ヶ月 | 礼金 | 1 ヶ月 |
| 管理費 共益費 |
10,000円 - |
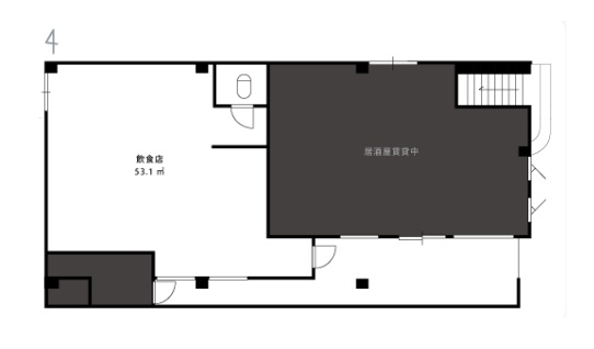
使用部分面積 | 53.1m² | 駐車場(月額) | 近有 (1 台) 7,200円/台 |
| 担当からのコメント | 1階の奥側に位置する隠れ家的雰囲気の飲食店区画です。元々はスナックが入っており以前から使われていたレトロなカウンターや棚などの店舗造作が一部残っています。 | ||||
| 沿線・駅 | JR篠ノ井線 松本 | バス・徒歩 |
【バス乗車】 ( 美ヶ原温泉線 ・ 葭町 )距離:190m 【駅徒歩】 22分 距離:1,500m 【自動車】 12分 |
| 建物名 | - | 階建・階 | 3階 / 1階 |
| 築年数 | 1982/- | 建物構造 | 鉄骨 |
| 敷引 | - | 保証金 | - |
| 保証金償却 | - | 権利金 | - |
| 造作譲渡 | - | その他一時金 | - |
| 雑費(月額) | - | バルコニー面積 | - |
| 用途地域 | 商業地域 | 賃貸借区分 | - |
| 契約期間 | 2年 | 契約満了日 | - |
| 坪単価 | 0.56万円 | 引渡し(入居日) | 予定 2025年12 月下旬日 |
| 設備 | トイレ/都市ガス | ||
| 居抜き | - | ||
| 備考 |
現況貸し/現在はリフォームが入っておらず以前の店舗造作が一部残っている状態。設備交換や修繕が必要。 法人登記可※入居期間に限る。飲食店向き・ペット不可・火災保険/保証会社加入要/共益費に水道を水道代含みます。 |
||
| 取引態様 | 媒介 | ||
更新日:2026年05月06日(次回更新予定日:2026年05月20日)
更新日:2026年05月06日
(次回更新予定日:2026年05月20日)
この物件について問い合わせる 0263-32-1235
売買仲介手数料について
取引態様が媒介の場合、国土交通省告示1552号の宅地建物取引業報酬に基づき取引額に応じて以下の手数料が別途必要になります。
| 取引額 |
| 200万円以下の場合 400万円以下の場合 400万円を超える場合 |
| 規定手数料 |
| 取引額の5% 取引額の4%+2万円 取引額の3%+6万円 |
※上記金額には別途消費税がかかります。


